Appartamento in Vendita a Pietra Ligure
Classe energetica
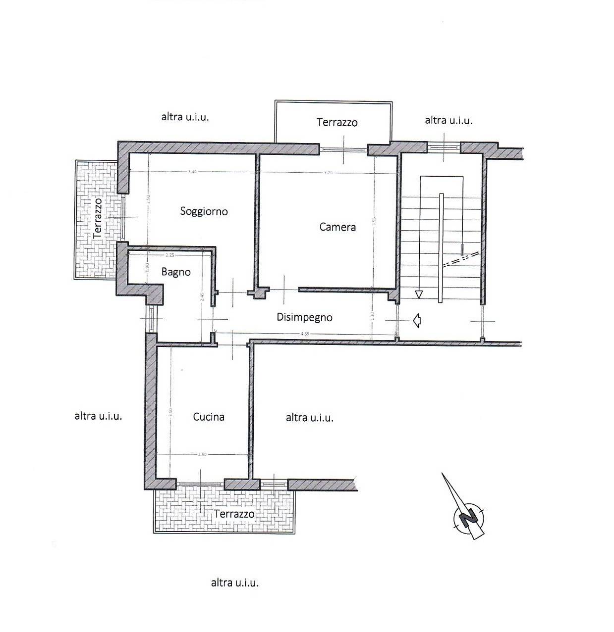
Il gruppo Biemme immobiliare propone in Vendita Appartamento ubicato in zona residenziale a soli 400 metri dal mare e comoda a tutti i servizi.
L'Appartamento internamente si compone di un ingresso, una cucina abitabile, una camera matrimoniale ed un bagno finestrato.
Un piacevole outdoor living di questa proprietà viene garantito dalla presenza di tre ampie balconate.
Inoltre un comodo posto auto è annesso alla Vendita di questo immobile..
Riscaldamento autonomo, basse spese di gestione generale.
Potete contattarci, senza impegno, per ricevere ulteriori informazioni o per prenotare una visita a questo Appartamento in Vendita a Pietra Ligure.
Contattaci
Biemme Immobiliare
Via Giacomo Matteotti, 149
Borgio Verezzi (SV)
Telefono 019617670
Cellulare 3929818186
borgio@biemmeimmobiliare.it
Immobili simili
Ultimo aggiornamento 14-02-2026













