Appartamento in Vendita a Finale Ligure
Zona: Finale Marina
Classe energetica
Il gruppo Biemme immobiliare propone in Vendita splendido trilocale con rara ed impareggiabile vista a picco sul mare.
La proprietà si colloca a ridosso della "promenade" Borgio -Finale da cui in soli 2000 metri si accede all'ingresso della passeggiata mare di di Finale Ligure marina.
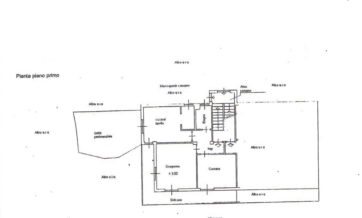
L' Appartamento viene venduto parzialmente arredato nei lussuosi componenti su misura come armadi, cucina e locale lavanderia; la disposizione interna comprende un ingresso, una cucina, una sala da pranzo oltre ad un soggiorno luminosissimo con vetrata panoramica mozzafiato ed un ulteriore porta finestra a cui si accede al bel terrazzo angolare, una camera matrimoniale anch'essa dotata di stupenda veduta sul mare ed un bagno.
Una vista superlativa, una balconata angolare, un giardino terrazzato ideale per cene e barbecue ed un posto auto ad uso esclusivo rendono questa residenza meritevole di essere collocata tra le migliori proprietà che la nostra agenzia è lieta di proporre e garantire.
Attualmente libero al rogito, l'immobile si presenta in ottimo stato di conservazione grazie alla cura e alla manutenzione costante dei proprietari.
Potete contattarci, senza impegno, per ricevere ulteriori informazioni o per prenotare una visita a questo immobile tutti i giorni dalle 9,30 alle 12,30 e dalle 15,30 alle 18,30 al numero 019/617670
Contattaci
Biemme Immobiliare
Via Giacomo Matteotti, 149
Borgio Verezzi (SV)
Telefono 019617670
Cellulare 3929818186
borgio@biemmeimmobiliare.it
Immobili simili
Ultimo aggiornamento 04-12-2025














